Fecha
2025
Categoría
Arquitectura para la Salud
En un importante boulevard que refleja el desarrollo urbano de la ciudad a lo largo de un siglo, se encuentra esta casona, que fue utilizada por familias de la alta sociedad y que reflejaba la prosperidad de la época, generando un paisaje característico. Con el tiempo, estas mansiones fueron transformando sus usos, para dar paso a instituciones educativas, comerciales, financieras o de arquitectura para la salud, como es el caso de este proyecto.
Esta casona está catalogada como patrimonio histórico arquitectónico.
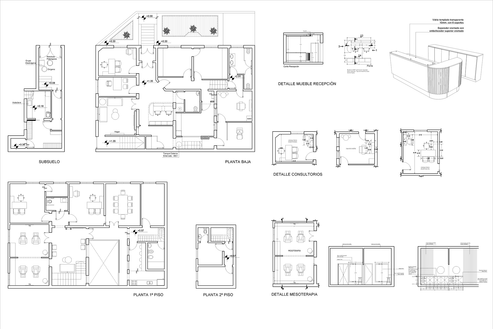
La propuesta del proyecto, que es un centro médico, consiste en una refuncionalizacion y puesta en valor del edificio histórico patrimonial, restaurando sus fachadas y su volumetría.
En el interior, se mantuvieron inalterados los salones de la planta baja, la escalera en mármol de carrara y su imponente hall de ingreso. De esta manera, el primer piso con sus magníficos salones, se mantiene en las mismas condiciones de su construcción de origen, con sus típicos pisos de pinotea, sus cubiertas de bovedilla a la vista y sus aberturas de cedro y pinotea con vidrio repartido con inmejorables vistas al boulevard.
Las áreas de servicio fueron remodeladas y refuncionalizadas a los fines de los espacios de tipo técnico/medico, mientras que los salones principales se utilizaron para consultorios, salas de espera, mesoterapia y quirófanos.
Tradición y modernidad conviven y se potencian mutuamente con el contraste entre la masa muraria de la casona y los detalles del mobiliario contemporáneo, la paleta cromática neutra y una luminotecnia especialmente cuidada.











